- ホーム
- 不動産検索
- 八幡市八幡月夜田
不動産詳細Property Detail
この不動産のお支払い例
頭金0円 / ボーナス払い0円
価格:2,280万円
月々:59,166円
※上記支払例の借入条件:金利0.500%、借入総額2,280万円、借入期間35年
画像
所在地・交通
| 所在地 |
八幡市八幡月夜田
|
| 最寄駅 |
京阪本線 樟葉 |
| 最寄バス停 |
|
| 小学校校区 |
南山小 |
| 中学校校区 |
男山第二中 |
※地図上の「ピンマーク」の位置は「町名」もしくは「丁目」がある場合は「丁目」にマッピングされています。
実際の場所ではございません。
不動産概要
| 種目 |
新築一戸建て |
| 土地面積 |
63.93㎡ |
| 私道面積 |
|
| 建ぺい率/容積率 |
60% / 200% |
| 都市計画 |
市街化区域 |
| 接道状況 |
西 幅4.5m 公道 |
| 間口 |
|
| 奥行 |
|
| 地目 |
宅地 |
| 土地権利 |
所有権 |
| 地勢 |
平坦 |
| 用途地域 |
第一種中高層住居専用地域 |
| 現況 |
空家 |
| 条件等 |
|
| 取引態様 |
仲介 |
| 種目 |
新築一戸建て |
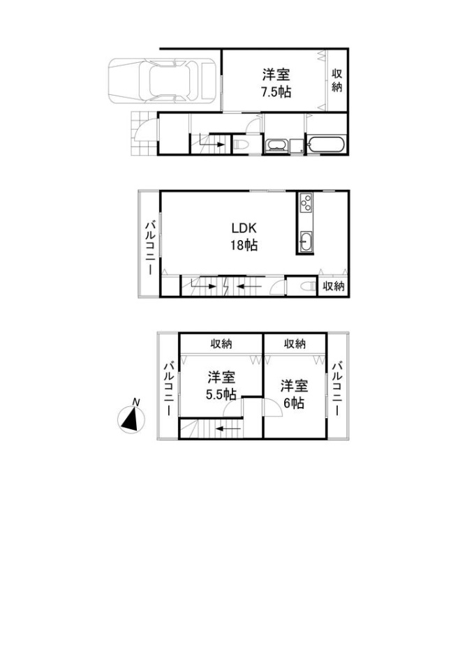
| 間取り |
3LDK |
| 間取り内訳 |
|
| 土地面積 |
63.93㎡ |
| 私道面積 |
|
| 建物面積 |
93.96㎡ |
| 建物構造規模 |
木造 |
| 築年月(竣工月) |
2025年7月 |
| 建築確認番号 |
第REJ24311-34947号 |
| 駐車場有無 |
有 |
| 建ぺい率/容積率 |
60% / 200% |
| 都市計画 |
市街化区域 |
| 接道状況 |
西 幅4.5m 公道 |
| 地目 |
宅地 |
| 土地権利 |
所有権 |
| 地勢 |
平坦 |
| 用途地域 |
第一種中高層住居専用地域 |
| 現況 |
空家 |
| 取引態様 |
仲介 |
| 種目 |
新築一戸建て |
| 間取り |
3LDK |
| 間取り内訳 |
|
| 土地面積 |
63.93㎡ |
| 私道面積 |
|
| 建物面積 |
93.96㎡ |
| 建物構造規模 |
木造 |
| 築年月(竣工月) |
2025年7月 |
| 建築確認番号 |
第REJ24311-34947号 |
| 駐車場有無 |
有 |
| 建ぺい率/容積率 |
60% / 200% |
| 都市計画 |
市街化区域 |
| 接道状況 |
西 幅4.5m 公道 |
| 地目 |
宅地 |
| 土地権利 |
所有権 |
| 地勢 |
平坦 |
| 用途地域 |
第一種中高層住居専用地域 |
| 現況 |
空家 |
| 取引態様 |
仲介 |
| 種目 |
新築一戸建て |
| 間取り |
3LDK |
| 間取り内訳 |
|
| 専有面積 |
|
| 建物構造 |
木造 |
| バルコニー面積 |
|
| 向き |
|
| 階数 |
|
| 所在階 |
|
| 築年月(竣工月) |
2025年7月 |
| 駐車場有無 |
有 |
| 駐車場料金 |
|
| 駐車場備考 |
|
| 総戸数 |
戸 |
| 管理費 |
|
| 積立金 |
|
| 土地権利 |
所有権 |
| 管理形態/方式 |
|
| 用途地域 |
第一種中高層住居専用地域 |
| 現況 |
空家 |
| 取引態様 |
仲介 |
| 種目 |
新築一戸建て |
| 土地面積 |
63.93㎡ |
| 私道面積 |
|
| 建物面積 |
93.96㎡ |
| 建物構造規模 |
木造 |
| 築年月(竣工月) |
2025年7月 |
| 駐車場有無 |
有 |
| 駐車場料金 |
|
| 駐車場備考 |
|
| 建ぺい率/容積率 |
60% / 200% |
| 都市計画 |
市街化区域 |
| 接道状況 |
西 幅4.5m 公道 |
| 地目 |
宅地 |
| 土地権利 |
所有権 |
| 地勢 |
平坦 |
| 用途地域 |
第一種中高層住居専用地域 |
| 現況 |
空家 |
| 取引態様 |
仲介 |
| 種目 |
新築一戸建て |
| 間取り |
3LDK |
| 間取り内訳 |
|
| 専有面積 |
|
| 建物構造 |
木造 |
| バルコニー面積 |
|
| 向き |
|
| 階数 |
|
| 所在階 |
|
| 築年月(竣工月) |
2025年7月 |
| 駐車場有無 |
有 |
| 駐車場料金 |
|
| 駐車場備考 |
|
| 総戸数 |
|
| 管理費 |
|
| 積立金 |
|
| 土地権利 |
所有権 |
| 管理形態/方式 |
|
| 用途地域 |
第一種中高層住居専用地域 |
| 現況 |
空家 |
| 取引態様 |
仲介 |
取引条件等
その他
| 設備 |
|
| 特徴 |
|
| 諸条件・相談 |
|
| 情報登録日 |
2025年11月18日 |
| 情報更新予定日 |
2026年4月21日 |
| 不動産番号 |
21013 |
この不動産に似た不動産をピックアップしました!